
Komplettumbau eines Mehrfamilienhauses zum Eigenheim
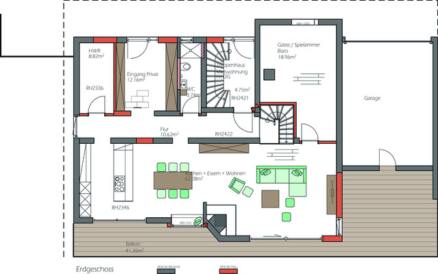
"aus Alt mach Neu" Das Mehrfamilienhaus aus 1960, mit drei Wohneinheiten, wird komplett Entkernt, die Räume neu aufgeteilt, neue Strom, Wasser und Heizungsinstallation, neue Fenster Einteilungen, Vollwärmeschutz, neues Dach... Geplant ist im KG und EG der Privatbereich und im DG eine Mietwohnung. between indoor and outdoor spaces.
Ort
Bechtersbohl
Ort
Bechtersbohl
Kategorie
Umbau/Sanierung
Kategorie
Umbau/Sanierung
Leistung
-
Leistung
-
Jahr
-
Jahr
-
Status
Fertig
Status
Fertig
Projektbilder
Projektbilder
Projektbilder
Bilder zu diesem Projekt
Bilder zu diesem Projekt
Bilder zu diesem Projekt
Hier erhalten Sie einen visuellen Eindruck von diesem Referenzprojekt. Die Bilder zeigen die einzelnen Arbeitsschritte sowie das fertige Ergebnis und geben Ihnen einen authentischen Einblick in unsere Arbeit.
Hier erhalten Sie einen visuellen Eindruck von diesem Referenzprojekt. Die Bilder zeigen die einzelnen Arbeitsschritte sowie das fertige Ergebnis und geben Ihnen einen authentischen Einblick in unsere Arbeit.
Hier erhalten Sie einen visuellen Eindruck von diesem Referenzprojekt. Die Bilder zeigen die einzelnen Arbeitsschritte sowie das fertige Ergebnis und geben Ihnen einen authentischen Einblick in unsere Arbeit.


























Other Projects
Other Projects
Other Projects
Weitere Referenzen entdecken
Weitere Referenzen entdecken
Weitere Referenzen entdecken
Sie möchten noch mehr von unserer Arbeit sehen. Hier finden Sie eine Auswahl weiterer Projekte, die Einblicke in die Vielfalt und Qualität von BSP Hochtal geben. Lassen Sie sich inspirieren und entdecken Sie, was wir bereits für unsere Kunden umgesetzt haben.
Sie möchten noch mehr von unserer Arbeit sehen. Hier finden Sie eine Auswahl weiterer Projekte, die Einblicke in die Vielfalt und Qualität von BSP Hochtal geben. Lassen Sie sich inspirieren und entdecken Sie, was wir bereits für unsere Kunden umgesetzt haben.
Sie möchten noch mehr von unserer Arbeit sehen. Hier finden Sie eine Auswahl weiterer Projekte, die Einblicke in die Vielfalt und Qualität von BSP Hochtal geben. Lassen Sie sich inspirieren und entdecken Sie, was wir bereits für unsere Kunden umgesetzt haben.
Jetzt
Kontaktieren
Hochtal
Telefon
Besuchen Sie uns
Zimmerei Hochtalhaus & schreinerei Hochtalmöbel
Jetzt Anfrage senden
Schreib uns einfach. Wir freuen uns auf deine Nachricht und melden uns schnellstmöglich zurück.
Zimmerei & Schreinerei Hochtal © 2025
Jetzt
Kontaktieren
Hochtal
Telefon
Besuchen Sie uns
Zimmerei Hochtalhaus & schreinerei Hochtalmöbel
Jetzt Anfrage senden
Schreib uns einfach. Wir freuen uns auf deine Nachricht und melden uns schnellstmöglich zurück.
Zimmerei & Schreinerei Hochtal © 2025
Jetzt
Kontaktieren
Hochtal
Telefon
Besuchen Sie uns
Zimmerei Hochtalhaus & schreinerei Hochtalmöbel
Jetzt Anfrage senden
Schreib uns einfach. Wir freuen uns auf deine Nachricht und melden uns schnellstmöglich zurück.
Zimmerei & Schreinerei Hochtal © 2025





